地毯45度燃烧测试仪
时间:2025-05-20 15:55 点击次数:
地毯45度燃烧测试仪
主要用途:
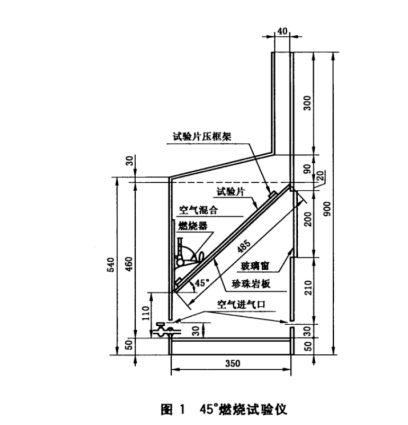
45°燃烧试验仪:燃烧试验仪的燃烧箱体用不锈钢材料制成,箱体应装有玻璃观察窗,箱的顶部装有排烟口,两侧下部各开有一排通风孔,箱内设有试样夹持框架装置与水平位置成45°,试验箱由定时、点火装置及安全控制系统等组成
测试标准:
GB/T14768-2015;
QB/T 2755-2005
技术参数:
控制系统:PLC系统;
操作界面:彩色七寸触摸屏,中英文切换;
使用气体:液化石油气(主要成分丁烷和丁烯)
点火方式:手动方式点火;
引燃时间
续燃时间
阴燃时间
火焰尺:24mm一把;
点火枪1把;
毛刷1把
面板含调压阀,(0-1MPA)
测试仓内部尺寸:350mm ×250mm ×540mm;出风口长度360mm
试样尺寸:400*220mm;
岩板尺寸:485*220*8mm;
电源:AC220V±10%V,50Hz 300W
外形尺寸:501mm*270mm*960mm(L×W×H);
试样夹具如图


